Hartwall Capital

Sijainti
Helsinki, Kauppatorin edusta
Tilaaja
Hartwall Capital
Tehtävä
Pääsuunnittelu, arkkitehtisuunnittelu, sisustussuunnittelu, toimistotilat
Laajus
540 brm² 
Aika
2019-202

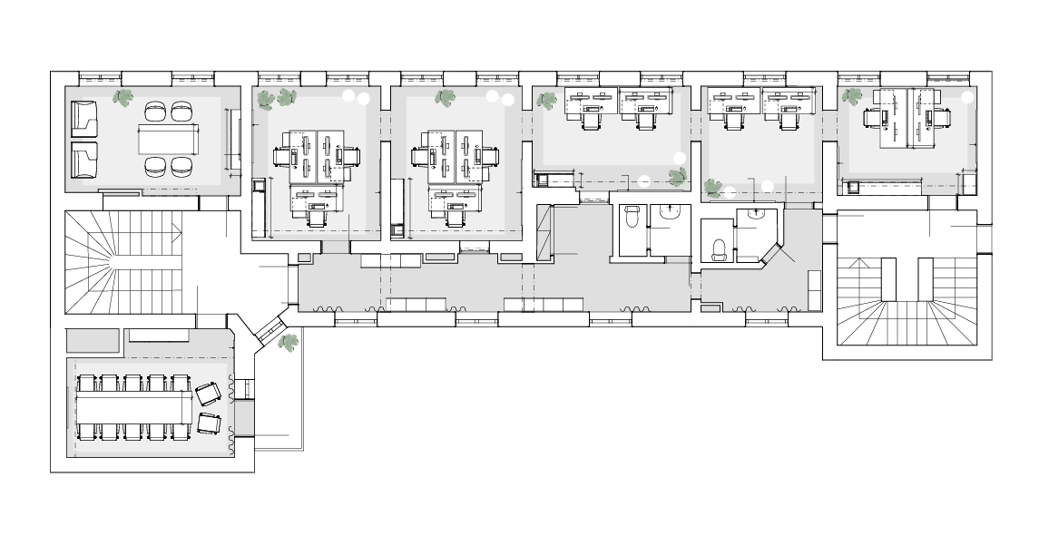
Historialliseen arvokiinteistöön modernit viihtyisät toimitilat

Pohjoisesplanadilla sijaitseva Lampan talo on yksi Helsingin historiallisista arvokohteista. Talolla on värikäs historia: Sen rakennutti vuosina 1814–1817 asuintaloksi kauppias Johan Lampa, ja siinä on sittemmin toiminut sekä Stockmannin puoti että poliisin putka. Rakennusta on korjattu eri vuosikymmenten aikana, ja nykyisen uusrenessanssityylin suunnitteli arkkitehti Sebastian Gripenberg vuonna 1889. Vuonna 2012 Lampan taloon tehtiin omistajanvaihdoksen yhteydessä iso peruskorjaus, jonka myötä rakennus palautettiin sen alkuperäiseen uusrenessanssityyliin. 

Valokuvat: Vanessa Forstén

Hartwall Capital valitsi vuonna 2020 kilpailutuksen myötä kolmannen kerroksen toimitilojen arkkitehti-, sisustus- ja kalustesuunnittelun ja projektin läpiviemisen toteuttajaksi Arkhormian, jonka näkemys oli asiakkaan mielestä vahvin. 

Toimistomme suunnitteli ja kehitti tiloja yhdessä asiakkaan kanssa. Tavoitteena oli moderni viihtyisä toimistotila. Halusimme kunnioittaa suunnittelussa talon historiallista ja arvokasta interiööriä. Paransimme tilojen toiminnallisuutta ja valoisuutta avaamalla itäsiiven vanhat oviaukot huoneiden välistä ja lisäämällä tiimi- ja neuvottelutiloja. Suunnittelimme tilojen ja kalusteiden värit sopimaan yhteen 1800-luvun sävyjen ja materiaalien kanssa, mutta halusimme keventää kokonaisilmettä. Käytimme vanhoja kalusteita osana uutta tilaratkaisua.